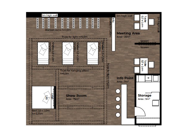
Der Messestand präsentiert sich als ein innovativer und einladender Raum, der sich auf textile Strukturen und modernes Design spezialisiert hat. Die Gestaltung des Standes folgt einem klaren und durchdachten Konzept, das Materialien, Farben und Funktionalität auf harmonische Weise miteinander verbindet.Der Stand ist offen und einladend konzipiert, mit einer klaren Zonierung in Präsentations-, Beratungs- und Aufenthaltsbereiche. Der Schriftzug für das Logo ist an prominenter Stelle an der Wand angebracht und sorgt für einen hohen Wiedererkennungswert.

Der Fokus liegt auf Textilproben, die in strukturierter und ästhetischer Form präsentiert werden. Farblich dominieren warme Holz Töne, kombiniert mit Akzenten in Rot, Blau, Weiss und Grau. Dies unterstreicht das strukturierte Designkonzept und vermittelt gleichzeitig ein Gefühl von Wärme und Modernität. Die Kombination aus hängenden Elementen, verschiedenen Präsentationshöhen und Materialien erzeugt Tiefe und Spannung. Der Einsatz von Licht (Deckenstrahler) lenkt gezielt den Fokus auf bestimmte Produkte und Strukturen. Die Möblierung ist funktional und stilvoll zugleich, angepasst an die Bedürfnisse eines modernen Messestands.